

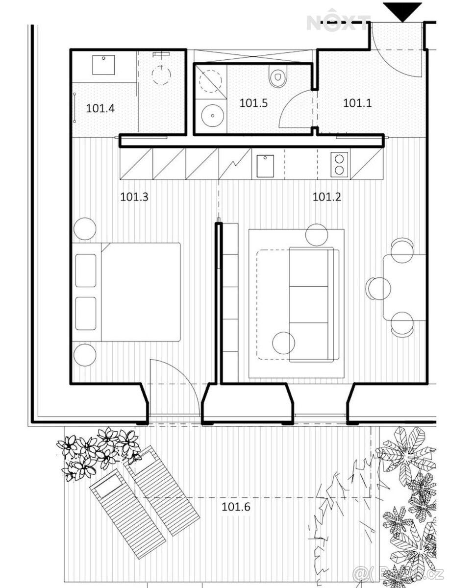
Apartmán 2kk 37m² Krušné hory - České Hamry k trvalému bydlení s nadstandardním servisem. Exkluzivně nabízíme k prodeji 9 apartmánů v Krušných horách - České Hamry v moderním čtyř patrovém bytovém domě, který je bezbariérový s výbornou dostupností z Prahy a okolních větších měst. Apartmány a celý bytový dům jsou realizovány ve vysokém standardu (izolační trojskla, zateplení, sanita a vybavení, včetně řešení vytápění apod.) Bytové jednotky jsou částečně vybaveny a některé mají balkón nebo terasu, úložné kóje na sportovní potřeby a ke každé je parkovací stání v areálu. Nabízíme i možnost individuálního vybavení podle Vašeho přání na které dostanete voucher v hodnotě 100 000,- - 300 000,- Kč podle velikosti apartmánu. Pokud nehledáte apartmán k trvalému bydlení, můžete zvolit možnost komerčního pronájmu bez starostí, v době, kdy jej nebudete využívat. V zimních měsících (prosinec-březen) je v areálu Klínovec a Fichtelberg (47 km sjezdovek a 50 km běžkařských tras) v letních měsících turisitika a cyklistika, nebo nádherný klid a relax. To jsou důvody, proč si vybrat České Hamry, pro jedinečnost místa a kvalitu celého projektu, který bude mít vzorový byt dokončen v listopadu 2025. Ráda Vás proto uvítám na prohlídce, nebo poskytnu podrobnější informace k projektu, ale bytových jednotek je jen 9 :-) Pro komunikaci uvádějte evidenční číslo zakázky N111256.
Parametry
- na Realingu
- Aktualizace před 4 dny
včetně kontaktních údajů na majitele
Jste inzerent?
Je toto vaše nabídka? Vylepšete ji a získejte více zájemců. Inzerování na Realingu je zdarma pro všechny.
včetně kontaktních údajů na majitele
Jste inzerent?
Je toto vaše nabídka? Vylepšete ji a získejte více zájemců. Inzerování na Realingu je zdarma pro všechny.




