

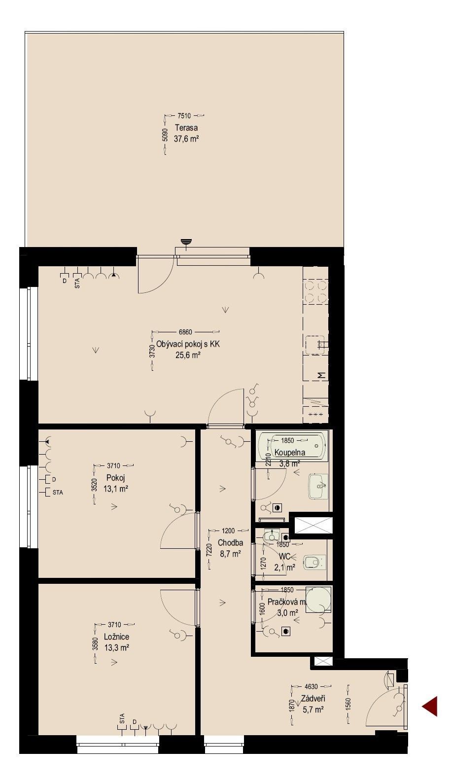
Nabízím k prodeji poslední byt v novostavbě bytového domu, s dispozicí 3+kk o podlahové ploše 84,8m² vč. příslušenství, které tvoří sklep o výměře 7,9m² umístěný v suterénu domu. Tento byt (č. bytu 598/15) je umístěný v 1.NP a pyšní terasou o výměře 37m². V rámci kupní ceny je také parkovací místo v suterénu domu.
V rámci projektu KASÁRNA, stavba bytového domu C1, nabízíme k prodeji celkem 23 bytů. Dům je umístěný v atraktivní části města Trutnova, lokalita Horní Předměstí. Byty mají dispozice 2+kk, 3+kk a 4+kk o podlahové ploše 61m² – 121m². Jsou v cenové relaci od 5.116.200,- Kč do 10.682.600,- Kč. Ke každému bytu je v rámci kupní ceny sklep a parkovací místo, obojí umístěné v suterénu domu.
Bytový dům C1 je moderní stavba, která je prioritně zaměřená na rodinné bydlení. Má celkem 6 podlaží. Je řešena jako pavlačová s centrálním schodištěm a výtahem. V podzemním podlaží jsou umístěna pakovací místa, sklepy a technické zázemí domu. V prvním až čtvrtém podlaží jsou vždy dva byty 2+kk, dva byty 3+kk a jeden 4+kk. V posledním podlaží jsou tři nadstandardní byty s terasami.
Dispozice bytů jsou řešeny moderním způsobem reflektujícím současný životní styl, kde dominantní obytný prostor zahrnuje jak obývací pokoj, jídelnu tak i kuchyň. Kuchyňská linka není součástí dodávky, je zde však připravený odtah pro napojení digestoře, rozvod vody a odpadu a jsou zde připravené volné kabelové vývody ukončené v instalačních krabicích. V obytných místnostech jsou na podlaze plovoucí laminátové podlahy, v koupelně a na WC je použita dlažba. Koupelny jsou vybaveny zařizovacími předměty (vana nebo sprchový kout, umyvadlo, toaleta, topné těleso). Téměř všechny byty disponují úložným prostorem (komora, tech.místnost, pračková nika) v rámci bytu. Vchod do bytu je zajištěn protipožárními, bezpečnostními dveřmi. Interiérové dveře jsou dřevěné, atypického rozměru s nadsvětlíkem.
Obrovským bonusem jsou u všech bytů lodžie, balkony nebo terasy.
Bytový dům je napojený na veřejnou kanalizaci, na veřejný vodovodní řád a v budově má umístěnou výměníkovou stanici (ústřední dálkové vytápění). Internet je zajištěn optickým kabelem. Byty jsou vhodné jak k rodinnému bydlení, tak jako investice (pronájem).
Bydlení v novostavbě má mnoho výhod. Jednak je úspornější díky kvalitnějším technologiím, materiálům a výborné izolaci, díky čemuž výrazně ušetříte na energiích. Na byt dostanete záruku, jako na každý spotřebič, který si koupíte. Bydlení je komfortnější, protože na rozdíl od jiných bytových domů, je v našem domě vždy výtah, kterým se dostanete z garáže až k bytu.
Parametry
- ID nabídky Realingo-01BV2401
- Cihlová stavba
- Novostavba
- 1. patro
- 77 m² užitné plochy
- 96 055 Kč za m² užitné plochy
- Osobní vlastnictví
- Terasa
- Energeticky velmi úsporná (B)
- na Realingu
- Aktualizace před 39 dny
Co je v okolí
včetně kontaktních údajů na majitele
Jste inzerent?
Je toto vaše nabídka? Vylepšete ji a získejte více zájemců. Inzerování na Realingu je zdarma pro všechny.
Podobné nabídky v okolí
včetně kontaktních údajů na majitele
Jste inzerent?
Je toto vaše nabídka? Vylepšete ji a získejte více zájemců. Inzerování na Realingu je zdarma pro všechny.







