

12 990 000 Kč
Rodinný dům, 600 m², Svatoplukova, Napajedla
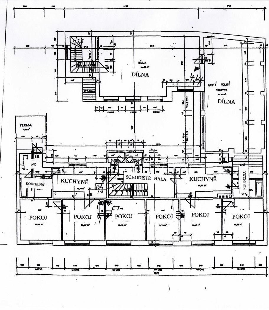
Cena k jednání-možnost slevy. Poslední možnost do 30.9.2025 pak se nemovitost nebude již prodávat. Exklusivní prodej - velmi zajímavé víceúčelové komerční nemovitosti s velkým využitelným potenciálem - Napajedla Svatoplukova - 2 byty, kanceláře, obchodní, výrobní, skladové prostory, šatny, dílny, terasy, dvory a átria atd. Dispozice: v přízemí do ulice jsou obchodní prodejní prostory - vhodné jako obchodní prodejní prostory, kanceláře, ordinace atd., dozadu jsou skladové nebo výrobní prostory, atria. Horní patro: 2 byty. Možnost předělat na byty nebo více možností využití.
Přípoj na dálnici. Doporučujeme prohlídku, financování vyřizujeme na míru.
Parametry
- ID nabídky Realingo-88
- Dobrý stav
- 600 m² užitné plochy
- 420 m² pozemku
- 420 m² zastavěné plochy
- 21 650 Kč za m² užitné plochy
- Energeticky mimořádně nehospodárná (G)
- na Realingu
- Aktualizace před 46 dny
Co je v okolí
včetně kontaktních údajů na majitele
Jste inzerent?
Je toto vaše nabídka? Vylepšete ji a získejte více zájemců. Inzerování na Realingu je zdarma pro všechny.
Podobné nabídky v okolí
12 990 000 Kč
Rodinný dům, 600 m² + 420 m² pozemek
Svatoplukova, Napajedla
včetně kontaktních údajů na majitele
Jste inzerent?
Je toto vaše nabídka? Vylepšete ji a získejte více zájemců. Inzerování na Realingu je zdarma pro všechny.







