

2 500 000 Kč
Pozemek pro bydlení, 1 m², Dětenice
Nabízíme k prodeji stavební pozemek, který je dle ÚP určený pro individuální bydlení v domech vesnického typu (sedlová střecha).
Inženýrské sítě (obecní kanalizace, obecní voda) jsou v komunikaci na hranici pozemku. V obci je základní občanská vybavenost a nachází se zde i turisticky hojně navštěvovaný zámek s krčmou.
Tento velký pozemek představuje výjimečnou příležitost pro ty, kteří hledají klidné místo pro rodinné bydlení se všemi výhodami venkovského života a zároveň dobrou dostupností do větších měst (22 km Mladá Boleslav, 20 km Jičín), ale i pro rekreační bydlení.
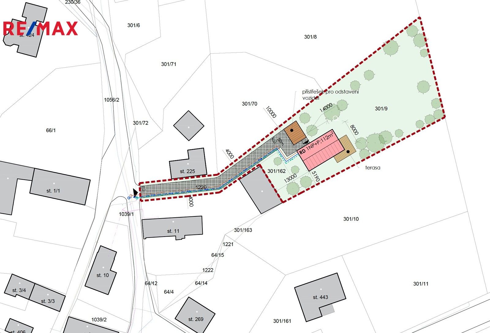
Ve fotogalerii uvádím vizualizace možného umístění stavby na pozemku a vedení sítí a také vizualizace jednoho z mnoha možných podob rodinného domu. Současní majitelé pozemku jsou ochotni poskytnout součinnost s realizací elektropřípojky.
Jedná se o pozemek 301/9 a 1220 k k.ú. Dětenice.
V případě zájmu o více informací či prohlídku mě neváhejte kontaktovat.
Parametry
- ID nabídky Realingo-408074
- 1 m² pozemku
- 2 500 000 Kč za m² pozemku
- Přípojky: kanalizace
- na Realingu
- Aktualizace před 7 dny
Co je v okolí
včetně kontaktních údajů na majitele
Jste inzerent?
Je toto vaše nabídka? Vylepšete ji a získejte více zájemců. Inzerování na Realingu je zdarma pro všechny.
Podobné nabídky v okolí
2 500 000 Kč
Pozemek pro bydlení, 1 m²
Dětenice
včetně kontaktních údajů na majitele
Jste inzerent?
Je toto vaše nabídka? Vylepšete ji a získejte více zájemců. Inzerování na Realingu je zdarma pro všechny.







