

79 256 Kč
Kancelář, 278 m², Opletalova, Praha
Nabízíme k pronájmu klimatizované kancelářské prostory o celkové výměře 278 m² v cihlové budově nacházející se nedaleko hlavního nádraží. Budova je rekonstruovaná ve vysokém standardu, je napojena na optický kabel, což zajišťuje internetové připojení na vysoké úrovni. U vchodu je centrální recepce, přecházející v nočních hodinách v ostrahu.
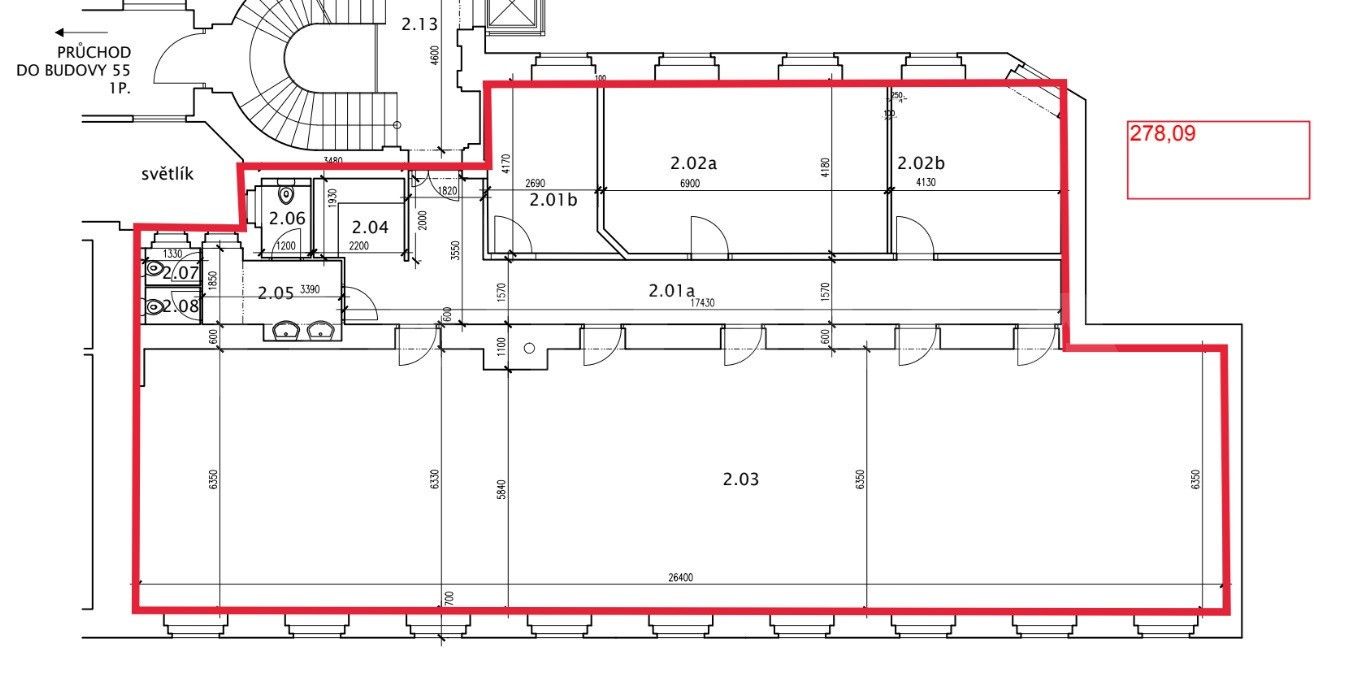
Prostory se nacházejí ve druhém patře do kterého je možné vyjet výtahem od recepce. Dispozičně se jedná o 4 místnosti s vlastní kuchyňkou, toaletami a sprchou (viz plánek). Prostory jsou umístěny ve vnitroblokovém křídle, což je předpokladem pro klidné pracoviště nerušené zvuky z ulice.
K dispozici od 04/2025.
Pro více informací mne neváhejte kontaktovat. Velmi rád Vám zodpovím Vaše dotazy a případně domluvím osobní prohlídku prostor.
V této lokalitě vám můžeme nabídnout další zajímavé prostory, více nabídek z našeho portfolia naleznete na našich webových stránkách.
- Neplatíte provizi.
Parametry
- ID nabídky Realingo-N77881
- Cihlová stavba
- Velmi dobrý stav
- Patrový
- 2. patro (z 4)
- 278 m² užitné plochy
- 278 m² kancelářské plochy
- 285 Kč za m² užitné plochy
- Částečně vybaveno nábytkem
- Energeticky nehospodárná (E)
- Ukazatel energetické náročnosti 252 kWh/m²
- Telefon a internet
- Mimo záplavovou oblast
- Dostupné od 1. 4. 2025
- na Realingu
- Aktualizace před 276 dny







