

18 000 Kč
Kancelář, 75 m², U solných mlýnů, Olomouc
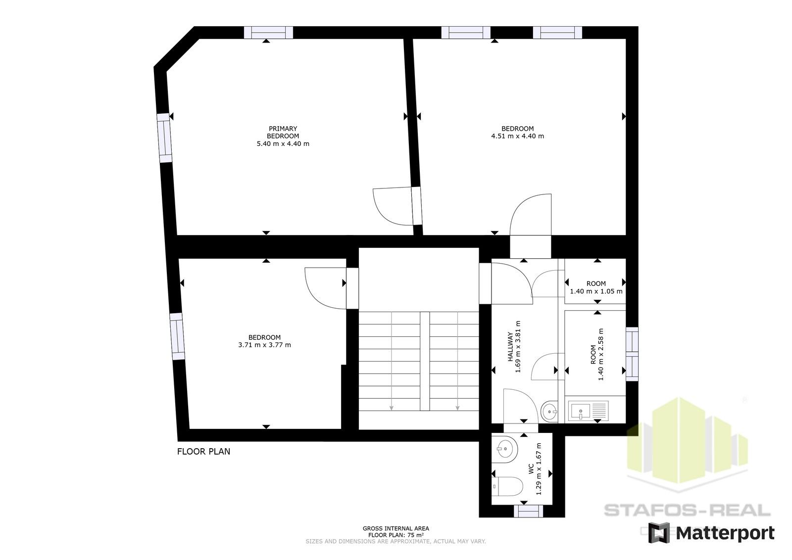
Nabízíme Vám pronájem kancelářského prostoru ve 2.NP budovy na ulici U Solných mlýnů, Olomouc - Holice. Jedná se o kompletně zrekonstruovanou prvorepublikovou vilu v klidném prostředí. Nabízený prostor, který prošel v letošním roce kompletní rekonstrukcí se skládá ze tří kanceláří, z nichž dvě jsou navzájem propojeny spojovacími dveřmi, třetí samostatně z chodby domu a dále příslušenství v podobě kuchyňky a sociálního zařízení o celkové ploše 75m². Toto uspořádání nabízí variabilitu využití, například samostatná kancelář lze využít jako zasedací místnost pro jednání s klienty, případně jako kancelář jednatele společnosti, přičemž zbylé dvě kanceláře by sloužily administrativě, zaměstnancům společnosti. Po domluvě bude připraveno grafické označení kanceláří, dále logo u vstupu do budovy a na informačním totemu před budovou. Celý objekt je elektronickým zabezpečovacím systémem napojen na pult centrální ochrany SOS. K dispozici je parkovací stání před budovou. Další bezproblémové parkování lze využít pro klienty budoucího nájemce podél ulice. Výhodou je také blízkost dopravního napojení na dálnici Brno - Ostrava s výpadovkou na Přerov a dopravní tepny mezi hl. autobusovým nádraží, FN a výpadovkou na Mohelnici. Zastávka MHD 200m od domu. Prostory jsou vhodné např. pro sídlo firmy s administrativou, která má sklady nebo výrobu jinde, regionální obchodní zastoupení, projekční kancelář, realitní kancelář, atd., kde činnost nájemce není podmíněna velkou frekvencí lidí v pronajatých prostorách. Cena pronájmu 18.000,- Kč + 21% DPH, dále energie 5.230,- Kč bez příslušné DPH včetně elektřiny a internetu. Odměna RK ve výši jednoho nájmu + 21% DPH, tj. 21.780,- Kč vč. DPH. Vratná kauce ve výši dvou nájmů. Volné po domluvě ihned.
Parametry
- ID nabídky Realingo-2257
- Jiný druh stavby
- Po rekonstrukci
- 2. patro
- 75 m² užitné plochy
- 75 m² pozemku
- 240 Kč za m² užitné plochy
- Energeticky mimořádně nehospodárná (G)
- Odpad: veřejná kanalizace
- Vytápění: ústřední dálkové
- Elektřina: 230 V
- Internet
- na Realingu
- Aktualizace před 53 dny
Co je v okolí
včetně kontaktních údajů na majitele
Jste inzerent?
Je toto vaše nabídka? Vylepšete ji a získejte více zájemců. Inzerování na Realingu je zdarma pro všechny.
Podobné nabídky v okolí
18 000 Kč
Kancelář, 75 m²
U solných mlýnů, Olomouc
včetně kontaktních údajů na majitele
Jste inzerent?
Je toto vaše nabídka? Vylepšete ji a získejte více zájemců. Inzerování na Realingu je zdarma pro všechny.







