

+3 fotografie
Cena dohodou
Obchodní prostory, Liberec, 463 11
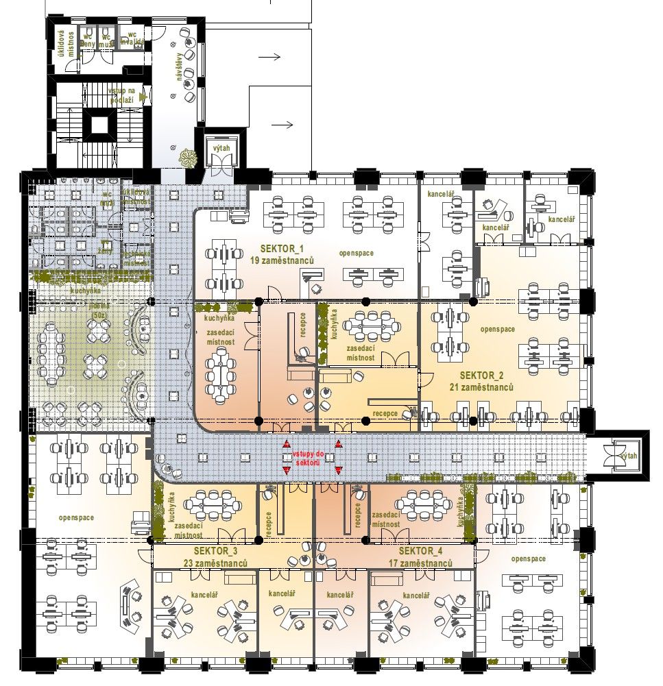
- 4 PATRA- 5.000 m² plochy- centrum Vratislavic nad Nisou- dopravní napojení na D10 - Praha-Děčín- parkování v areálu- v dochozí vzdálenosti: pošta, kavárna, restaurace, MHDV případě zájmu nás kontaktujte a sjednejte si prohlídku objektu.email: delicova@intex.cz
Parametry
- na Realingu
- Aktualizace před 54 dny
Mapa se načítá...
Co je v okolí
včetně kontaktních údajů na majitele
Jste inzerent?
Je toto vaše nabídka? Vylepšete ji a získejte více zájemců. Inzerování na Realingu je zdarma pro všechny.
Podobné nabídky v okolí
Cena dohodou
Obchodní prostory
Liberec, 463 11
včetně kontaktních údajů na majitele
Jste inzerent?
Je toto vaše nabídka? Vylepšete ji a získejte více zájemců. Inzerování na Realingu je zdarma pro všechny.







